fbpx
For Rent: KL Midtown Grade A Office | MRT 3 | MITEC | Hyatt Regency Hotel | Aeon Retail Mall
  • MYR 71,400

Overview

  • Office
  • Property Type
  • 11900 sqft
  • Area Size
  • 2026
  • Completion Date

Description

Premium Grade A Office for Rent at KL Midtown, KL Metropolis

Experience the future of corporate excellence at KL Midtown, the crown jewel of the 75.5-acre KL Metropolis master plan. Strategically located in the Dutamas-Mont Kiara enclave, these Signature Office Towers offer an unparalleled business address designed by the globally-renowned architects Skidmore, Owings & Merrill (SOM).

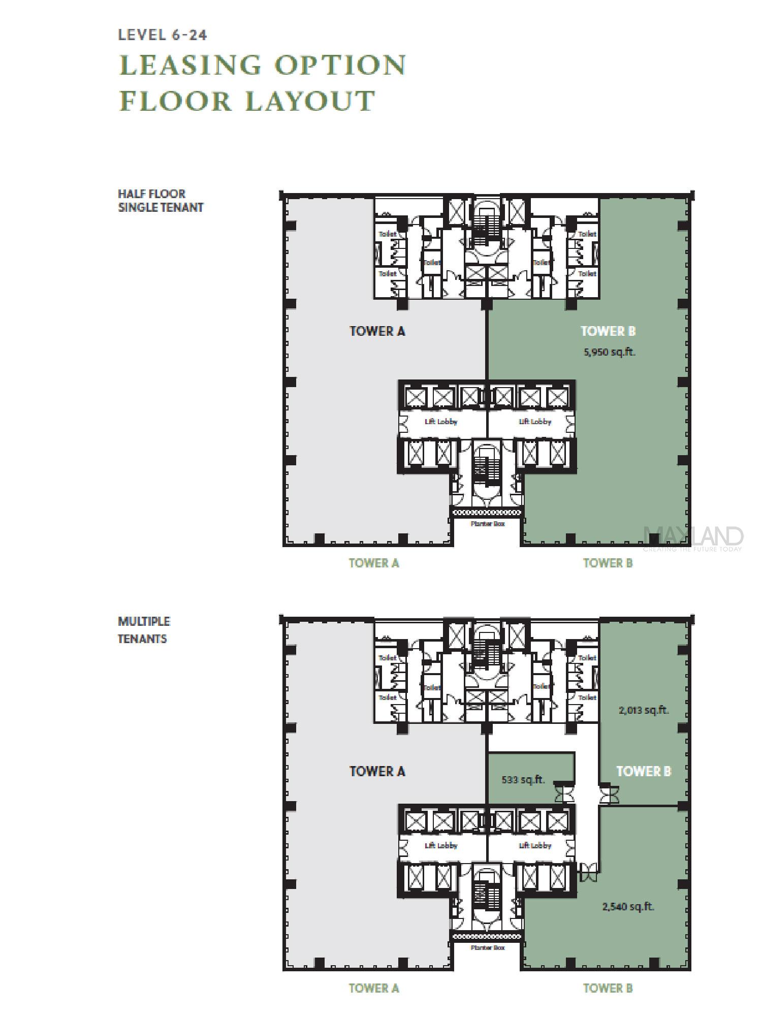
Whether you are looking for an expansive entire-floor headquarters or a versatile half-floor setup, these units provide the prestigious image and functional flexibility your business deserves.

Read More

Details

Updated on April 14, 2026 at 12:52 pm
  • Price MYR 71,400
  • Property Size 11900 sqft
  • Completion Date 2026
  • Property Type Office
  • Property Status For Rent
  • Tenure Freehold
  • Developer Hap Seng Land
  • No. Floors 19

Additional details

  • 1 Unit 1 Floor 11900
  • 2 Units 1 Floor 5978
  • Address: Jalan Dutamas 2
  • City: kuala lumpur
  • State/county: Wilayah Perseketuan
  • Zip/Postal Code: 50480
  • Area: KL Midtown
  • Country: Malaysia

Layout Plans

Schedule a Tour

Your information

Contact Information

View Listings
Yihar Chan

Enquire About This Property

Compare listings

Compare